Maße
Hier die Maße der verschiedenen Aufbautarten
(Quellen: VW Prospekt Januar 1979, September 1970, etc.):
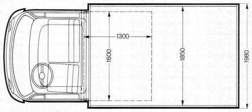
Kastenwagen - Typ 21
Bus, Kombi, (Camper) und Krankenwagen - Typ 22, Typ 23 und Typ 27
Pritschenwagen - Typ 26
Großraum-Holzpritsche - Typ 26
Doppelkabine - Typ 26
Westfalia-Camper - Typ 23-517
(Mausklick zum Vergrößern!)
Karmann Mobil
(Mausklick zum Vergrößern!)
Karosseriemaße
Karosserie- und Bodengruppenmaße finden sich im VW Reparaturleitfaden Aufbau ab A18.2
- Karosseriemaße A18.2/2-1
- Bodengruppe ab August 1967 A18.2/5-1
- Bodengruppe ab August 1969 A18.2/6-1
- Bodengruppe ab August 1971 A18.2/7-1
- Bodengruppe ab August 1972 A18.2/8-1
Weitere Maße
Hier noch ein paar kleine Detailwerte.
Sitzbreite Fahrersitz / Beifahrersitz: ca. 510 mm
Sitzbreite Beifahrersitzbank: ca. 800 mm
Für den Gepäckträger habe ich an unserem Bulli folgende Werte ermittelt:
Breite über die Regenrinnenaußenseite: ca. 1410 mm
Breite über die Regenrinneninnenseiten: ca. 1380 mm
Dachwölbung über Regenrinnenunterkante: ca. 180 mm
























