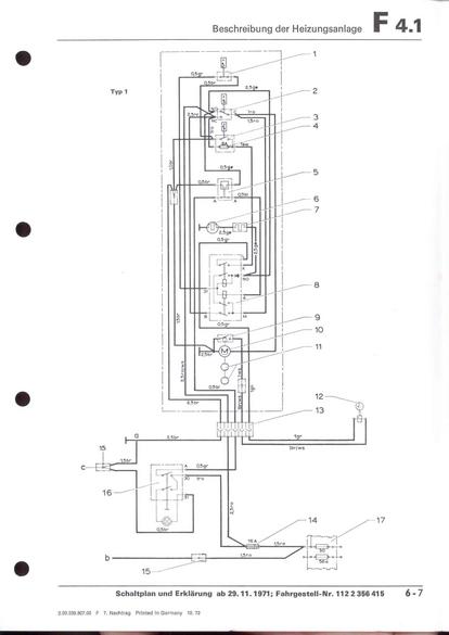
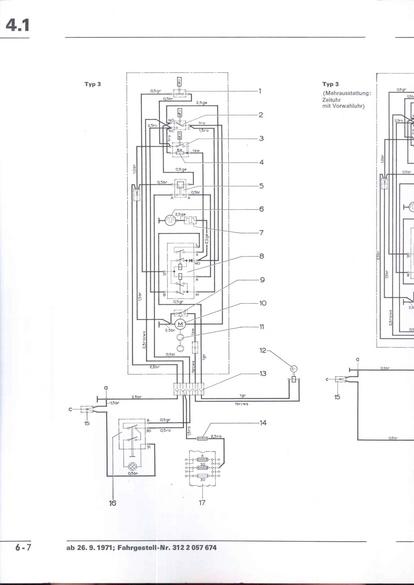
RLF F: F4.1/6-7



    nächste Seite