VW-Bus T2 67-79 Rahmen und Aufbau
Doppelbleche
Insbesondere Stellen, an denen bei der Konstruktion zwei Bleche übereinandergelegt sind, rosten gerne durch, wenn sie nicht rechtzeitig besonders geschützt sind:
Die Verstärkungen für die Sicherheitsgurtaufnahmen in vorderen und hinteren Radkasten rosten gerne. Fahrzeuge ohne Unterbodenschutz sind da etwas besser. Die Sicherheitsgurtschrauben würde ich, damit sie nicht völlig in der am Aufbau verschweißten Mutter festrosten, die kopfseitigen Gewindegänge gefettet von unten (!) einschrauben und den Sicherheitsgurt von oben mit einer passenden Mutter (UNF 7/16-20) befestigen.

Ab 8/69 sind zur Versteifung der Rahmenanlage im vorderen Bereich die vorderen Längsträger y-förmig ausgelegt worden. Oberhalb der Längsträger sind trapezförmige Versteifungen angebracht. Das in direktem Kontakt darüberliegende Bodenblech rostet daher sehr gerne genau in diesem Bereich durch.

Photos dazu unter Boden Fahrerraum, Radkasten vorne, Längsträger vorn, links
und unter Boden Fahrerraum, Radkasten vorne, Längsträger vorn, rechts
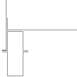
Das Bild zeigt in Fahrtrichtung den Längsträger der linken Seite, das daraufliegende Anschlußblech für die Motorverblechung und links das Batterieblech.

Das Bild zeigt quer zur Fahrtrichtung auf der linken Seite die Rückwand des vorderen Radkasten, den Laderaumboden, darunter den Querträger, darunter die Wagenheberaufnahme. Von hinten kommendes Spritzwasser gerät zwischen Laderaumboden und Querträger und von dort zwischen Radkastenrückwand und Querträger, wo es dann durchrostet.

Das linke Bild zeigt den Laderaumboden, Querträger und Längsträger bis ca. Bj. 73, das rechte danach. Bei der älteren Version rostet der Querträger selbst und der Laderaumboden direkt über dem Querträger weg, danach nur noch der Laderaumboden.

(Photos dazu)
Alle Säulen mit Ausnahme der B-Säule sind von außen durch ein Karosserieblech abgedeckt. Vor allem bei C- und E-Säule sind die Bereiche, die die Säule mit dem Querträger bzw. Längsträger verbinden, gewöhnlich völlig weggerostet. Bei der "Reparatur" werden dann meist nur die außen sichtbaren Deckbleche aufgesetzt, die Säule hängt in der Luft. (Ich würde daher einen restaurierten Bus nur kaufen, wenn ich mit einem Endoskop an diese Stellen geguckt hätte. An der E-Säule rechts und links vom Motorraum kann man das vielleicht auch schon durch die Hohlraumversiegelungsbohrungen sehen.)
Das linke Bild zeigt einen waagerechten Schnitt durch die A-Säule, das mittlere durch die C-Säule, das rechte durch die E-Säule, jeweils in Fahrtrichtung links.



(Photo zur A-Säule, hier noch ein Photo zur A-Säule,
weitere Photos unter Radkasten vorne, A-Säule und B-Säule links
und unter Radkasten vorne, A-Säule und B-Säule rechts
sowie Schweller hinter Schiebetür und C-Säule
)
Das gleiche Phänomen tritt übrigens auf an den im Motorraum sichtbaren Säulen rechts und links vom Tankraum, dort wo sie auf den Längsträgern stehen.
Sitzbankbefestigungsmulde und Sitzbankbefestigungblech (Photos dazu)
Zwischen Dachholm und Dach befindet sich eine wunderschöne Wassersammelstelle:

Beim meinem Wagen hat zudem einer der Vorbesitzer ein undichtes Hubdach eingebaut, daher Reparaturphotos hier bzw. hier.
An der Motorhaube befindet sich im Schloßbereich nur von innen sichtbar eine Verstärkung, die zusammen mit dem Außenblech einen sehr flachen Hohlraum bildet.
Übersicht Korrosion
Übersicht Reparatur-Hinweise
zu meiner VW-Bus-Seite
zu meiner homepage
Autor: Michael Knappmann
Copyright © 1998 Michael Knappmann,
All rights reserved.
Letzte Modifikation: 16.08.2006
Erstmals erstellt: 25.09.1998